首页
新房
二手房
租房
小区
资讯
经纪人
在线委托
关于我们
二手房
地图找房
空中看房
下载正顺好房APP
下载正顺好房APP
好房好生活OKHOME
4房可改5房 精装修 跃层好房 3个阳台 学位没用过 4房可改5房
采光充足
小康之家
生活便利
省级名校
收藏
分享
分享房源
扫一扫推荐给朋友
您的位置:
正顺好房网
>
二手房
>
详情页
提示:您的浏览器不支持视频播放,请升级浏览器》》
视频看房
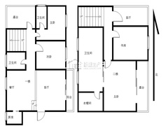
户型图
258.0
万
15787元/㎡
首付77万 贷款181万 月供11820元,20年(仅供参考)
3房2厅1卫
高楼层/共12楼
163㎡
精装
南北通
2005年建
住宅
小区名称
天上人间
所在区域
琼山
房源编号
1557628
更新日期
2023-03-16
OKHOME承诺真实房源,
虚假举报
有奖
加入对比
约车看房
联系客服
基本信息
房源描述
房源点评
房源照片
小区信息
地理位置
加入对比
约车看房
相关经纪人
基本信息
基本属性
区域
琼山
片区
凤翔路
小区
天上人间
产权
楼层
高楼层/共12楼
电梯
有
装修
精装
朝向
南北通
空间结构
楼龄
2005年
家具
家电
地板
景观
无景
小学
中学
税费参考
承担卖房税费
约 0 元
承担买房税费
买房税费主要包括:契税:(1%、1.5%、2%、3%)首套或二套<90㎡按1%,首套>90㎡按1.5%,二套>90㎡按2%,第三套起及非住宅按3%
楼层保密说明
按照总层高/3,分为低楼层、中楼层、高楼层,共三个段
* 以上基本属性和交易属性信息仅供参考,购房时以房产证/不动产证信息为准
房源描述
房子独有的特点:
4房可改5房 精装修 跃层好房 3个阳台 学位没用过 4房可改5房 精装修 跃层好房 3个阳台 学位没用过 4房可改5房 精装修 跃层好房 3个阳台 学位没用过
相关经纪人
黄剑鸿
国瑞店二组
我的微信
扫一扫添加微信
扫码拨号
13519838533
谢汉权
凤翔东一组
我的微信
扫一扫添加微信
扫码拨号
15008048228
蔡亲童
凤翔东二组
资深经纪人
普通话
我的微信
扫一扫添加微信
扫码拨号
13876868701
房源图片
查看全部
房贷计算器
房屋总价
258.00
贷款成数
2成
3成
4成
5成
6成
7成
8成
贷款类别
商业贷款
公积金贷款
组合贷款
贷款年限
30年(360期)
29年(348期)
28年(336期)
27年(324期)
26年(312期)
25年(300期)
24年(288期)
23年(276期)
22年(264期)
21年(252期)
20年(240期)
19年(228期)
18年(216期)
17年(204期)
16年(192期)
15年(180期)
14年(168期)
13年(156期)
12年(144期)
11年(132期)
10年(120期)
9年(108期)
8年(96期)
7年(84期)
6年(72期)
5年(60期)
4年(48期)
3年(36期)
2年(24期)
1年(12期)
商贷贷款额
商贷利率
首套3.45
首套3.60
二套4.80
公积金贷款额
公积金利率
参考利率3.1
立即计算
等额本息还款
等额本金还款
首付
万
贷款总额
万
月供
元
总利息
万
本息总额
万
首付
万
贷款总额
万
月供
元
每月递减
元
总利息
万
本息总额
万
注:本次计算仅作为购房参考,结合实际情况了解更精确首付、贷款方案,建议咨询专业顾问
首付和贷款情况咨询
地理位置
交通
教育
医疗
购物
生活
娱乐
公交站
地铁站
小区信息
查看更多 >
天上人间
小区地址
海南省海口市琼山区凤翔东路1号
建造年代
2005
小区物业
海南嘉元物业服务有限公司
开 发 商
海南佳元房地产开发有限公司
管 理 费
0.8 元/平米*月
在售 46 套
在租 33 套
查看全部
同类型二手房
查看全部
同类型租房
查看全部
预车看房
预约提交成功我们有专人与您取得联系
预约日期
随时
星期四
21
星期五
22
星期六
23
星期日
24
星期一
25
星期二
26
星期三
27
您的称呼
先生
女士
手机号码
短信验证码
获取验证码
输入识别码
其他要求
提交预约
相关经纪人
选择相关经纪人进行咨询联系
黄剑鸿
国瑞店二组
我的微信
扫一扫添加微信
扫码拨号
13519838533
谢汉权
凤翔东一组
我的微信
扫一扫添加微信
扫码拨号
15008048228
蔡亲童
凤翔东二组
资深经纪人
普通话
我的微信
扫一扫添加微信
扫码拨号
13876868701
手机登陆
密码登陆
立即登陆
立即登陆
虚假举报
房源ID(1557628)
您的称呼
手机号码
补充描述
验证码:
提 交
【房源】虚假举报属实,奖励 100 元。
【房评】虚假举报属实,奖励 50 元。
在线委托
房源对比
咨询客服QQ
联系客服
474738599
400-168-0808
咨询客服电话
09:30 - 18:30
周一至周六
微信公众号
随时随地关注珠海楼市
微信小程序
正顺好房官方小程序
官方APP
扫描下载正顺好房网APP
专家答疑
在线留言
返回顶部
在线留言
感谢您一直以来对正顺好房网的关注和支持,如果您在使用过程中遇到问题或意见建议请留言反馈给我们,谢谢!
如需我们跟您联系或答复的话,请您留下联系方式。
姓名
电话
E-mail
*
反馈内容
验证码
提交反馈
房源对比
修改
取消
新 房
二手房
租 房